︎
(n+d)
⋅
ing
(n+d)
⋅
ing
Info
/
Insta
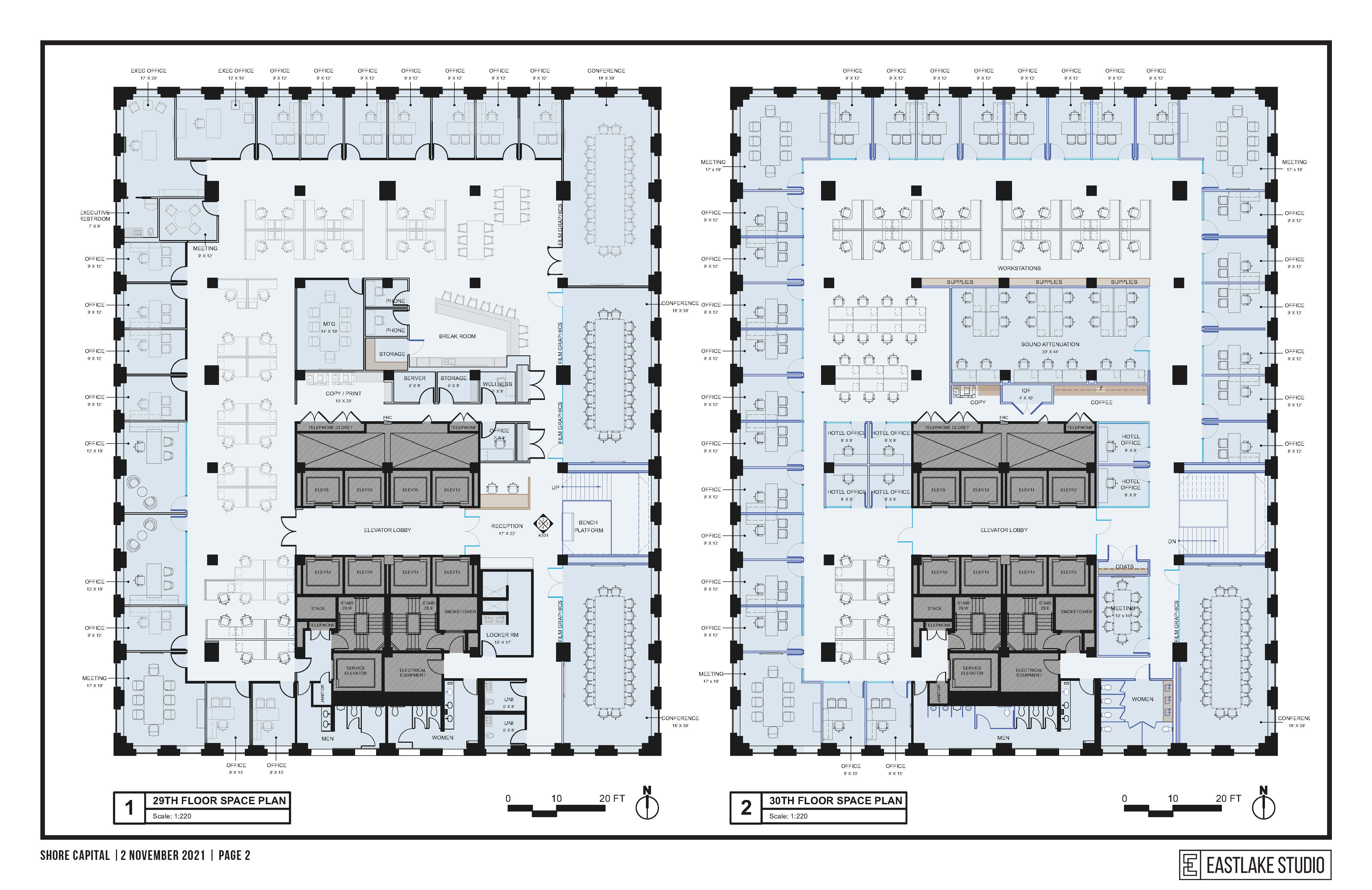
Shore Capital
-What If Design Inspired Innovation-
Shore Capital, Chicago, 2022, ongoing
(n+d)⋅ing Collective 2021 — Chicago, Illinois